Μετρό Θεσσαλονίκης-Σταθμός "Μίκρα" & Επίσταθμος

Συνεχίζονται οι εργασίες στον Σταθμό “Μίκρα” του Μετρό Θεσσαλονίκης από την ΑΚΤΩΡ Α.Τ.Ε. Έχει ήδη ολοκληρωθεί η κατασκευή του Φέροντος Οργανισμού και των Αρχιτεκτονικών στοιχείων, ενώ προχωρούν οι εργασίες των Η/Μ εγκαταστάσεων.

Τα μέλη της εταιρείας “ΠΟΛΥΔΡΟΣΟ ΜΕΛΕΤΗΤΙΚΗ Ι.Κ.Ε.”, ως ελεύθεροι επαγγελματίες, σε συνεργασία με το Γραφείο Μελετών “ΟΜΙΚΡΟΝ ΚΑΠΠΑ ΜΕΛΕΤΗΤΙΚΗ Α.Ε.” συμμετείχαν, επιτυχώς, στην εκπόνηση της Στατικής Γενικής Οριστικής Μελέτης (Γ.Ο.Μ.) και της Στατικής Λεπτομερούς Οριστικής Μελέτης (Λ.Ο.Μ.) του έργου “ Επέκταση του Μετρό Θεσσαλονίκης προς Καλαμαριά”, και ειδικότερα τα τμήματα  “Σταθμός Μίκρα” και  “Σήραγγα Επίσταθμου Μίκρα & Τερματικό Φρέαρ”.

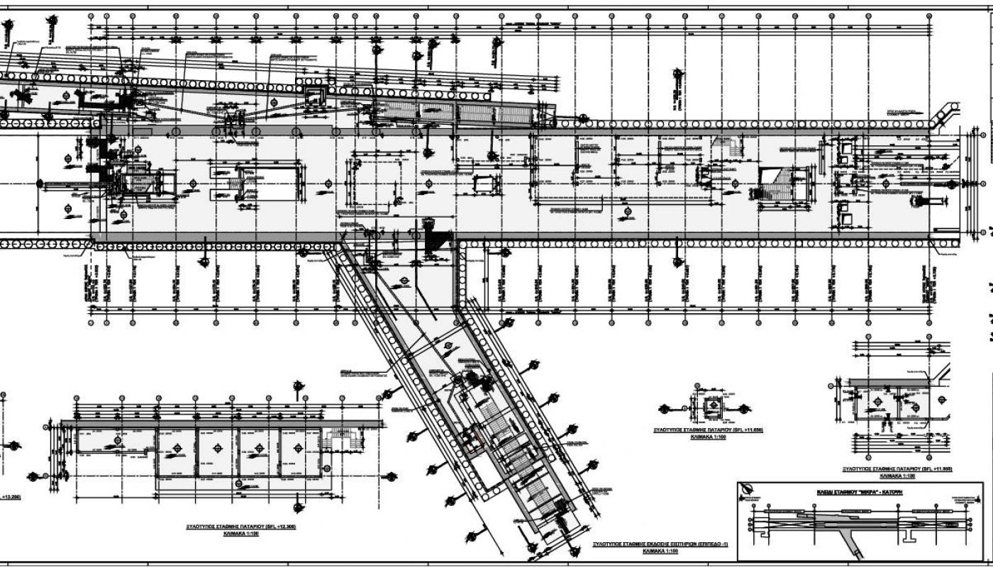
Ο “Σταθμός Μίκρα” είναι ένας από τους πέντε (5) σταθμούς της υπόγειας διαδρομής μήκους 4,8 χλμ του έργου της Επέκτασης του Μετρό Θεσσαλονίκης προς Καλαμαριά. Κατασκευάζεται κάτω από την μελλοντική επέκταση της οδού Πόντου με την μέθοδο εκσκαφής και επανεπίχωσης (Cut & Cover). Αποτελείται από τα παρακάτω τμήματα:

  • “Πρώτη Διασταύρωση”. Έχει μήκος 92 m, πλάτος 21,60 m και ενσωματώνει εκτός από την διπλή αλλαγή τροχιάς που περιλαμβάνεται στο χαμηλότερο επίπεδο, ένα  Φρέαρ Αερισμού σηράγγων (blast shaft), τον χώρο εξοπλισμού σηματοδότησης, τον υποσταθμό Έλξης και της υποστηρικτικές λειτουργίες των παραπάνω με τους αντίστοιχους τεχνικούς χώρους.

  • “Κυρίως Τμήμα Σταθμού Μίκρα”. Έχει μήκος 126 m, πλάτος 17,60 m και περιλαμβάνει τους χώρους πρόσβασης, εξυπηρέτησης και παραμονής του κοινού (κλιμακοστάσια, επίπεδο έκδοσης εισιτηρίων, αποβάθρες κ.λ.π.), με τις απαραίτητες Η/Μ εγκαταστάσεις τους. Η πρόσβαση του κοινού στο σταθμό γίνεται από τις δύο εισόδους του που χωροθετούνται εκατέρωθεν του σταθμού. Η Βόρεια Είσοδος (είσοδος από την οδό Παπανδρέου) αποτελείται από δύο αντικριστά κλιμακοστάσια (σταθερό και κυλιόμενο). Η Νότια Είσοδος αποτελείται από σταθερή κλίμακα και δύο κυλιόμενες εκατέρωθεν αυτής. Στο τμήμα αυτό του έργου προβλέφθηκε και μελετήθηκε όλη η τεχνική υποδομή για την εκκίνηση του TBM.

  • “Δεύτερη Διασταύρωση”. Έχει μήκος 104 m, πλάτος 19,35 m και εκτός από την διπλή αλλαγή τροχιάς που κατασκευάζεται στο χαμηλότερο επίπεδο, ενσωματώνεται  ένα  Φρέαρ Αερισμού σηράγγων (blast shaft), ο χώρος εξοπλισμού τηλεπικοινωνιών , ο υποσταθμός  LAS, ο χώρος  εξοπλισμού για τα πετάσματα αποβάθρων (PSD) και οι υποστηρικτικές λειτουργίες των ανωτέρω με τους αντίστοιχους τεχνικούς χώρους.

Στην συνέχεια της Δεύτερης Διαστάυρωσης κατασκευάζεται η Σήραγγα του Επίσταθμου. Έχει μήκος 358,00 m, μεταβλητό πλάτος από 10,40m έως 16,40m και καθαρό ύψος  8,00m. Σε τρείς (3) θέσειςς  έχει προβλεφθεί  καθαιρούμενο τμήμα του μετωπικού τοιχείου (knockout panels) με κατάλληλη αρθρωτή στήριξη  στην περίμετρο της σήραγγας, προκειμένου να διευκολυνθεί η έναρξη των μελλοντικών επεκτάσεων προς το “Αμαξοστάσιο Μίκρα” και το Αεροδρόμιο. Στο τέλος του Επίσταθμου  χωροθετείται το Τερματικό Φρέαρ το οποίο αποτελεί φρέαρ φυσικού αερισμού, άντλησης και έξοδο διαφυγής.